
Interné ID: | ZR |
---|---|
Ulica: | Vodná |
Mestská časť: | Párovce |
Obec: | Nitra |
Okres: | Nitra |
Kraj: | Nitriansky kraj |
Druh: | Domy |
Typ: | Predaj |
Typ domu: | Rodinný dom |
Koval reality vám exkluzívne ponúkajú na predaj 5 izbovú novostavba rodinného domu v Nitre v starom meste, na Vodnej ulici. Ponúkaná nehnuteľnosť je súčasťou dvojdomu.
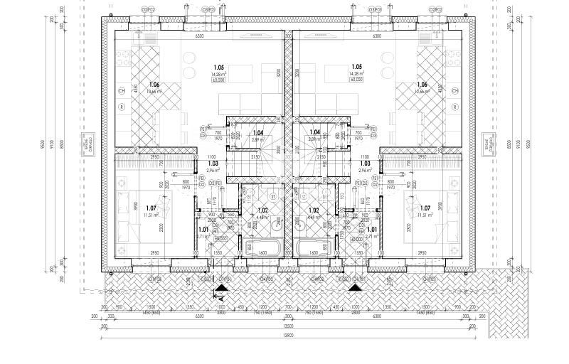
Rozloha 122 m2 (čistá obytná plocha 101 m2), kde prízemie pozostáva z chodby, kuchyne s obývačkou a jedálenským kútom s výstupom na terasu, kúpeľne s WC, technickej miestnosti, schodiska a jednej izby. V podkroví sa nachádzajú tri izby, kúpeľňa s WC a šatník. K domu prislúcha pozemok o rozlohe 275 m2 na ktorom sa nachádzajú miesta na parkovanie (dve vozidlá), terasa (cca 20 m2), spoločný prístrešok 6 m2 (náradie, bicykle...).
Obvodové steny sú postavené Ytong 300 a zateplené 20 cm polystyrénom s natiahnutou fasádou. Strecha stojí na mohutnej oceľovej konštrukcii (stolici) s dreveným krovom, plným záklopom a krytinou Bramac zateplená 40 cm izoláciou s časťou úložného priestoru na odloženie drobných vecí. Vnútorná priečka medzi domami je z akustickej tehly Protherm. Strop je z keramického systému. Vnútorné priečky z Ytong 100 s natiahnutou vnútornou omietkou, sadrokartónové podhľady. Okná značky Salamander s izolačným trojsklom s vonkajšími lamelovými žalúziami a v podkrový strešné okná Velux taktiež trojsklo. Okolie s osadenými obrubníkmi a zámkovou dlažbou. Dom je napojený na inžinierske siete (voda, kanalizácia, elektrina). mápredprípravou na fotovoltiku a wall box (bez koncových prvkov), závesné WC s odsávaním zápachu - Geberit Duofix (bez sanity), zónovo riadené podlahové teplovodné kúrenie s 6 kw tepelným čerpadlom Midea monoblok (bez izbových termostatov). Tepelné čerpadlo zabezpečuje aj ohrev úžitkovej vody. K dispozícii je 3,5 kw klimatizačná jednotka Midea a lokálna rekuperačná jednotka Prana Premium. Podlahy sú plávajúce a dlažba, obložkové zárubne, kuchynský linka so vstavanými spotrebičmi ...
Nehnuteľnosť sa nachádza sa vo veľmi lukratívnej lokalite s výbornou občianskou vybavenosťou, s dostupnosťou do úplného centra mesta do piatich minút pešou chôdzou.
V okolí sa nachádzajú: mestský park, kúpalisko, Nitriansky hrad, galéria , reštaurácie, ZŠ, Gymnázium , bilinguálna škôlka, univerzita, futbalové ihriská, zimný štadión, zastávka MHD, nákupné centrá, rôzne zdravotnícke zariadenia...
Všetky fotky nájdete na stránke kovalreality.sk
Ak vás táto nehnuteľnosť oslovila, alebo máte nejaké otázky, neváhajte ma kontaktovať, rada si to s Vami osobne prídem pozrieť.
V cene je zahrnuté vypracovanie zmlúv advokátskou kanceláriou, autorizácia zmlúv priamo v advokátskej kancelárii bez potreby overovania podpisov u notára, zastupovanie v katastrálnom konaní vrátane poplatkov.
Možnosť vybavenia najvýhodnejšieho hypotekárneho úveru.