
Interné ID: | NS |
---|---|
Ulica: | Zoborská |
Obec: | Malý Lapáš |
Okres: | Nitra |
Kraj: | Nitriansky kraj |
Druh: | Domy |
Typ: | Predaj |
Typ domu: | Rodinný dom |
Koval reality Vám ponúkajú na predaj 4 izbový bungalov v novej štvrti obci Malý Lapáš, v tichom prostredí. Pozemok má 600m2, je rovinatý, slnečný, nachádza sa na miernom kopci s pekným výhľadom.
Termín dokončenia naplánovaný na júl 2025, ak kupite nehnuteľnosť teraz, môžete sledovať stavebný proces. Aktualný stav domu treba vidieť, rada Vám dom ukažem osobne. Dom sa predáva v stave holodomu.
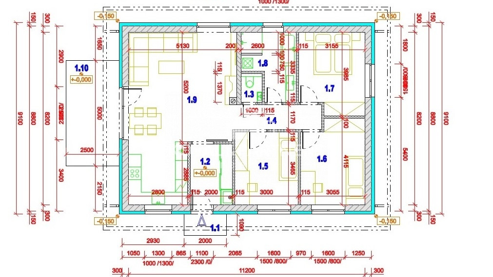
Zastavaná plocha domu 115 m2. Dispozícia: chodba, obývacia izba s kuchyňou, spalňa, 2 izby, kúpeľňa so sprchovým kútom, vaňou a miestom pre pračku, samostatná toaleta s umyvadlom (viď pôdorys).
Kvalitné materialy spĺňajú požiadavky aktuálnych noriem: tehla HELUZ, krytina TERAN, väzníkový krov, zateplenie 200mm EPS, anhydritové potery, plastové okná
Postup prác: základová doska, vodovodná prípojka vrátane šachty, obvodové a nosné murivo ukončené stužujúcim žel.bet. vencom, osadenie väzníkového krovu, uloženie strešnej krytiny. V súčasnosti prebiehajú elektromontážne a elektroinštalačné práce.
Výhody:
-komín s prípravou na krb
-podlahové kúrenie - tepeľné čerpadlo
-príprava na rekuperáciu, fotovoltiku, autonabíjačku, optika, bezpečnostný systém, kamery, protizáplavové čidlá ...
Obec sa nachádza len 6 km od Nitry - 5 minut autom, výjazd na R1- 2 km. Veľmi dobrá občianska vybavenosť obce.
Ďalšie detailné informácie ohľadom ponúkanej nehnuteľnosti Vám radi poskytneme na osobnom stretnutí alebo telefonicky.
V cene je zahrnuté vybavenie všetkých úkonov potrebných k prevodu nehnuteľností, vypracovanie zmlúv advokátskou kanceláriou, autorizácia zmlúv priamo v advokátskej kancelárii bez potreby overovania podpisov u notára, zastupovanie v katastrálnom konaní vrátane poplatkov. Podanie návrhu na vklad je elektronicky, cestou advokátskej kancelárie. Zabezpečujeme taktiež cestou nášho hypotekárneho špecialistu vybavenie hypotekárneho úveru i znaleckého posudku.
Realitný maklér